THE TOKYO TOWERS MIDTOWER| 3LDK
- ペット相談可
この建物の基本情報
| 問合番号 | R274489 |
|---|---|
| 賃料 | 成約済 |
| 階数 | ***** |
| 築年数 | 2008年1月 |
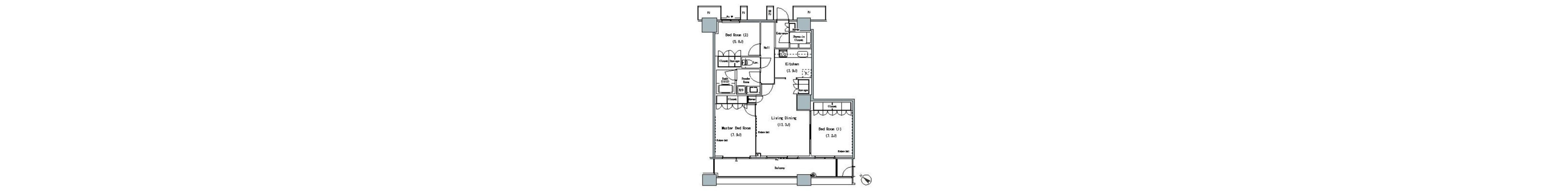
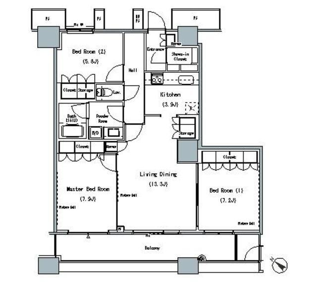
| 間取り | 3LDK ( 89.69㎡ ) |
| 契約種別 | 普通賃貸借(2年) |
| 最寄駅 |
都営大江戸線
『勝どき駅』
徒歩 5 分
|
物件概要
| 物件名 | THE TOKYO TOWERS MIDTOWER / ザトウキョウタワーズミッドタワー | ||||
|---|---|---|---|---|---|
| 賃料 | 成約済 | 物件種別 | マンション | 契約種別 | 普通賃貸借(2年) |
| 管理費 | ***** | ||||
| 所在地 | 東京都中央区勝どき6-3-2 地図はこちら | ||||
| 交通 |
都営大江戸線 『勝どき駅』
徒歩 5 分
|
||||
| 敷金 | ***** | 礼金 | ***** | 更新料 | ***** |
| 保険 |
加入要
加入要
|
||||
| 保証 |
加入要
加入要 初回保証委託料(最低20,000円):月額賃料等の50%、2年目以降:10,000円/年
保証会社利用原則必須:初回賃料総額の50%相当額、別途更新料有10,000円/1年 ※賃貸保証会社の利用条件について |
||||
| その他費用 |
|
||||
| ペット相談 | ペット飼育時敷金+1ヶ月、解約時敷金償却1ヶ月 | ||||
| 構造 | RC | 総階数 | 58階 / 地下2階 | 総戸数 | 1461 戸 |
| 築年月 | 2008年1月 | 間取り | 3LDK / 南西向き | 面積 | 89.69㎡ |
| 施工 | 前田建設工業/大成建設 | ||||
| 施主 | オリックスリアルエステート/東急不動産/住友商事 | ||||
| 取引態様 | 一般媒介 | 更新日 | 3月17日 | 更新予定日 | 3月31日 |
建物の特徴・設備
- 駐車場あり
- インターネット対応
- オートロック
- 防犯カメラ
- 24時間セキュリティー
- エレベーター
- 駐輪場
- バイク置場
- 敷地内ごみ置き場
- 東京タワービュー
- タワーマンション
- 各階ゴミ置き場
部屋の特徴・設備
- 浴室乾燥機
- システムキッチン
- B・T別
- 追焚機能
- エアコン
- バルコニー
- ペット相談
他の空室一覧(全 32 件)
| 間取画像 | 所在階 | 賃料 | 間取り 面積 |
敷金 礼金 |
更新料 仲介料 |
お気に入り お問い合わせ(無料) |
|---|---|---|---|---|---|---|
|
|
3階 |
480,000円
管理費
20,000円
|
3LDK
105.18㎡
|
2ヶ月
1ヶ月
|
1ヶ月
無料
|
お気に入り登録
お問い合わせ |
|
|
4階 |
422,000円
管理費
20,000円
|
2SLDK
87.34㎡
|
2ヶ月
1ヶ月
|
1ヶ月
無料
|
お気に入り登録
お問い合わせ |
|
|
4階 |
273,000円
管理費
15,000円
|
1LDK
59.98㎡
|
2ヶ月
1ヶ月
|
1ヶ月
無料
|
お気に入り登録
お問い合わせ |
|
|
4階 |
385,000円
管理費
20,000円
|
1SLDK
88.81㎡
|
2ヶ月
1ヶ月
|
1ヶ月
無料
|
お気に入り登録
お問い合わせ |
|
|
5階 |
210,000円
管理費
10,000円
|
1K
44.5㎡
|
2ヶ月
1ヶ月
|
1ヶ月
無料
|
お気に入り登録
お問い合わせ |
|
|
5階 |
475,000円
管理費
20,000円
|
3LDK
97.8㎡
|
2ヶ月
1ヶ月
|
1ヶ月
無料
|
お気に入り登録
お問い合わせ |
|
|
6階 |
235,000円
管理費
15,000円
|
1LDK
52.78㎡
|
2ヶ月
1ヶ月
|
1ヶ月
無料
|
お気に入り登録
お問い合わせ |
|
|
6階 |
233,000円
管理費
15,000円
|
1LDK
52.29㎡
|
2ヶ月
1ヶ月
|
1ヶ月
無料
|
お気に入り登録
お問い合わせ |
|
|
7階 |
324,000円
管理費
20,000円
|
1LDK
74.29㎡
|
2ヶ月
1ヶ月
|
1ヶ月
無料
|
お気に入り登録
お問い合わせ |
|
|
7階 |
256,000円
管理費
15,000円
|
1LDK
52.78㎡
|
2ヶ月
1ヶ月
|
1ヶ月
無料
|
お気に入り登録
お問い合わせ |
|
|
7階 |
261,000円
管理費
15,000円
|
1LDK
55.52㎡
|
2ヶ月
1ヶ月
|
1ヶ月
無料
|
お気に入り登録
お問い合わせ |
|
|
9階 |
271,000円
管理費
15,000円
|
1LDK
58.42㎡
|
2ヶ月
1ヶ月
|
1ヶ月
無料
|
お気に入り登録
お問い合わせ |
|
|
10階 |
303,000円
管理費
15,000円
|
1LDK
66.91㎡
|
2ヶ月
1ヶ月
|
1ヶ月
無料
|
お気に入り登録
お問い合わせ |
|
|
10階 |
262,000円
管理費
15,000円
|
1LDK
56.55㎡
|
2ヶ月
1ヶ月
|
1ヶ月
無料
|
お気に入り登録
お問い合わせ |
|
|
11階 |
441,000円
管理費
20,000円
|
2LDK
90.52㎡
|
2ヶ月
1ヶ月
|
1ヶ月
無料
|
お気に入り登録
お問い合わせ |
|
|
14階 |
221,000円
管理費
10,000円
|
1DK
46.38㎡
|
2ヶ月
1ヶ月
|
1ヶ月
無料
|
お気に入り登録
お問い合わせ |
|
|
16階 |
226,000円
管理費
15,000円
|
1LDK
51.78㎡
|
2ヶ月
1ヶ月
|
1ヶ月
無料
|
お気に入り登録
お問い合わせ |
|
NEW
|
16階 |
220,000円
管理費
15,000円
|
1LDK
51.78㎡
|
2ヶ月
1ヶ月
|
1ヶ月
無料
|
お気に入り登録
お問い合わせ |
|
|
18階 |
298,000円
管理費
15,000円
|
1LDK
65.59㎡
|
2ヶ月
1ヶ月
|
1ヶ月
無料
|
お気に入り登録
お問い合わせ |
|
NEW
|
19階 |
433,000円
管理費
20,000円
|
2LDK
98.21㎡
|
2ヶ月
1ヶ月
|
1ヶ月
無料
|
お気に入り登録
お問い合わせ |
|
|
23階 |
336,000円
管理費
20,000円
|
1SLDK
71.29㎡
|
2ヶ月
1ヶ月
|
1ヶ月
無料
|
お気に入り登録
お問い合わせ |
|
|
23階 |
420,000円
管理費
20,000円
|
3LDK
86.85㎡
|
2ヶ月
1ヶ月
|
1ヶ月
無料
|
お気に入り登録
お問い合わせ |
|
|
25階 |
231,000円
管理費
10,000円
|
1R
48.29㎡
|
2ヶ月
1ヶ月
|
1ヶ月
無料
|
お気に入り登録
お問い合わせ |
|
|
25階 |
427,000円
管理費
20,000円
|
3LDK
89.69㎡
|
2ヶ月
1ヶ月
|
1ヶ月
無料
|
お気に入り登録
お問い合わせ |
|
NEW
|
29階 |
229,000円
管理費
10,000円
|
1DK
47.38㎡
|
2ヶ月
1ヶ月
|
1ヶ月
無料
|
お気に入り登録
お問い合わせ |
|
NEW
|
30階 |
268,000円
管理費
15,000円
|
1LDK
55.52㎡
|
2ヶ月
1ヶ月
|
1ヶ月
無料
|
お気に入り登録
お問い合わせ |
|
|
30階 |
344,000円
管理費
20,000円
|
1SLDK
71.29㎡
|
2ヶ月
1ヶ月
|
1ヶ月
無料
|
お気に入り登録
お問い合わせ |
|
|
30階 |
247,000円
管理費
15,000円
|
1R
52.16㎡
|
2ヶ月
1ヶ月
|
1ヶ月
無料
|
お気に入り登録
お問い合わせ |
|
|
38階 |
420,000円
管理費
10,000円
|
3LDK
78.47㎡
|
1ヶ月
1ヶ月
|
1ヶ月
1ヶ月
|
お気に入り登録
お問い合わせ |
|
非公開物件
※ 会員登録後、 閲覧可能になります |
***** |
*****
管理費
*****
|
3LDK
93.82㎡
|
*****
*****
|
*****
*****
|
お気に入り登録
お問い合わせ |
|
非公開物件
※ 会員登録後、 閲覧可能になります |
***** |
*****
管理費
*****
|
3LDK
120.17㎡
|
*****
*****
|
*****
*****
|
お気に入り登録
お問い合わせ |
|
|
52階 |
500,000円
管理費
20,000円
|
4LDK
91.51㎡
|
2ヶ月
1ヶ月
|
-
1ヶ月
|
お気に入り登録
お問い合わせ |
「 THE TOKYO TOWERS MIDTOWER 」 の学区情報
豊海小学校
- 所在地
- 東京都中央区勝どき6-6-2
- 設立
- 1980年4月
公式サイトはこちら
https://www.chuo-tky.ed.jp/~toyomi-es/
この学校は、育成的でダイナミックな学習環境を育むことに専念しています。総合的な教育に重点を置いた豊海小学校は、学問の卓越性、個人の発達、そして 保護者は、学校のコミュニケーションプラットフォーム「tetoru」を通じて、学校の活動やイベントの最新情報を入手できます。このプラットフォームでは、欠席、遅刻、早退など、生徒の出席状況に関するコミュニケーションも効率化され、生徒の教育における協力的な取り組みが保証されます。 学校は東京の中心部に位置し、豊かな歴史と現代の側面を教育体験に取り入れ、文化的、社会的に学ぶユニークな機会を生徒に提供しています。豊海小学校は、生徒が思慮深く積極的な社会の一員となるための準備となる、バランスのとれた教育を提供することに尽力しています。
晴海中学校
- 所在地
- 東京都中央区晴海1-5-3
- 設立
- 1967年4月
公式サイトはこちら
https://www.chuo-tky.ed.jp/~harumi-jh/
晴海中学校は、東京都中央区に位置する中学校です。学校では、生徒一人ひとりの健やかな成長をサポートするため、さまざまな活動や取り組みを行っています。定期的に更新される学校生活や献立表、保健だよりなどを通じて、生徒や保護者に情報を提供し、安心して学校生活を送れる環境づくりに努めています。また、感染症対策にも配慮し、登校許可証の発行など、適切な対応を行っています。学校の特色や教育方針に関する情報は、学校案内から確認できます。
「 THE TOKYO TOWERS MIDTOWER 」 の周辺の施設
FACILITIES
「 THE TOKYO TOWERS MIDTOWER 」 以外のおすすめ物件
SUGGESTS